Skip To Content

408 Suffolk St.

Lowell, MA 01854
  • $6,039
  • STATUS: Active
  • MLS #: 73446045
UPDATED: 47 min ago
$6,039
  • 0
    BEDS
  • 0.32
    ACRES
  • 0
    BATHS
  • 0
    1/2 BATHS
  • 6,039
    SQFT
  • $1
    $/SQFT
Type:
Commercial-Lease
Built:
2025
County:

School Ratings & Info

Listing courtesy of Fred Faust of The Edge Group, Inc..

Description

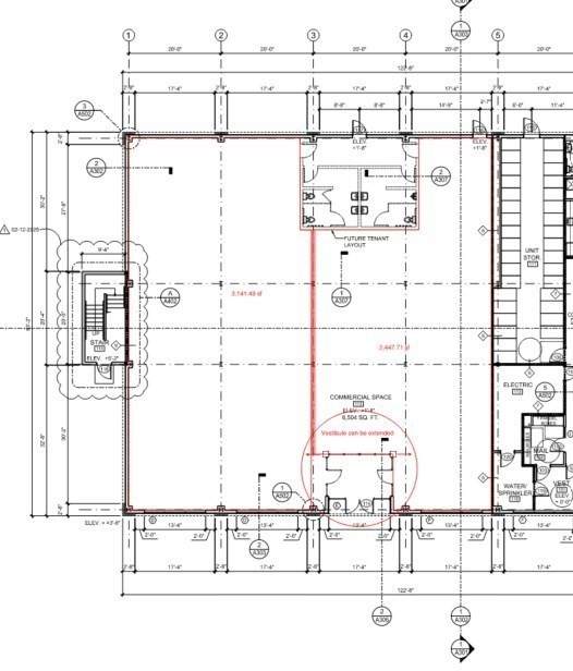
Welcome to Suffolk Place, a new retail, service and office opportunity for commercial renters located on Market Street and Suffolk Streets in Lowell. With completion scheduled for June, 2026, your tenancy can literaly get in on the first floor with visible first floor space ranging from 1,331 to 6,291 SF at affordable prices (1-3 spaces). The space will be finished with street access, storefronts, mechanical systems, and bathrooms. Additional fit out at tenant's expense. Suffolk Place compliments the new Acre Crossing Merrimack Street retail, office and condominiums, now complete. Located between downtown Lowell and UMASS Lowell's Union Crossing, Suffolk Place is an excellent address for your business. A unique feature of the property is a tenant's ability to purchase their commercial space in the form of a condominium should they remain in the space as tenants for two years or longer. Plans and preview showings available. See floor plans in photos showing three space options.



The property listing data and information set forth herein were provided to MLS Property Information Network, Inc. from third party sources, including sellers, lessors and public records, and were compiled by MLS Property Information Network, Inc. The property listing data and information are for the personal, non commercial use of consumers having a good faith interest in purchasing or leasing listed properties of the type displayed to them and may not be used for any purpose other than to identify prospective properties which such consumers may have a good faith interest in purchasing or leasing. MLS Property Information Network, Inc. and its subscribers disclaim any and all representations and warranties as to the accuracy of the property listing data and information set forth herein. Data last updated 2025-11-15T10:04:29.613.
www.c21revolution.com/homes/169108881
Print Image

408 Suffolk St. Lowell, MA 01854

  • Price: $6,039
  • Status: Active
  • On Site: Days
  • Updated: 47 min ago
  • MLS #: 73446045
0
Beds
0
Baths
0
½ Baths
0.32
Acres
6,039
SQFT
$1
$/SQFT
2025
Built
County:
Middlesex
Property Description
Welcome to Suffolk Place, a new retail, service and office opportunity for commercial renters located on Market Street and Suffolk Streets in Lowell. With completion scheduled for June, 2026, your tenancy can literaly get in on the first floor with visible first floor space ranging from 1,331 to 6,291 SF at affordable prices (1-3 spaces). The space will be finished with street access, storefronts, mechanical systems, and bathrooms. Additional fit out at tenant's expense. Suffolk Place compliments the new Acre Crossing Merrimack Street retail, office and condominiums, now complete. Located between downtown Lowell and UMASS Lowell's Union Crossing, Suffolk Place is an excellent address for your business. A unique feature of the property is a tenant's ability to purchase their commercial space in the form of a condominium should they remain in the space as tenants for two years or longer. Plans and preview showings available. See floor plans in photos showing three space options.
Exterior Features

Parking Total 0 Waterfront YN No

Interior Features

Building Area Total 6039

Property Features

Association YN No Business Type Commercial Disclosures Property under construction. Broker renting commercial space only. Base rent plus operating costs (NNN). Existing Lease Type NNN Home Warranty YN No Senior Community YN No Tax Annual Amount 15818 Tax Year 2025 Utilities Public WaterPublic Sewer Zoning UMU

Listing information © 2025 MLS Property Information Network. All information is deemed reliable but should be independently verified.
Listing provided courtesy of Fred Faust of The Edge Group, Inc.: 978-458-8822.


The property listing data and information set forth herein were provided to MLS Property Information Network, Inc. from third party sources, including sellers, lessors and public records, and were compiled by MLS Property Information Network, Inc. The property listing data and information are for the personal, non commercial use of consumers having a good faith interest in purchasing or leasing listed properties of the type displayed to them and may not be used for any purpose other than to identify prospective properties which such consumers may have a good faith interest in purchasing or leasing. MLS Property Information Network, Inc. and its subscribers disclaim any and all representations and warranties as to the accuracy of the property listing data and information set forth herein. Data last updated 2025-11-15T10:04:29.613.
 
https://bt-photos.global.ssl.fastly.net/mlspin/orig_boomver_1_73446045_2.jpg https://bt-photos.global.ssl.fastly.net/mlspin/orig_boomver_1_73446045_2.jpg https://bt-photos.global.ssl.fastly.net/mlspin/orig_boomver_1_73446045_2.jpg
Logo
CENTURY 21 Revolution
625 Massachusetts Ave, 2nd Floor
Cambridge MA, 02139
Listing courtesy of Fred Faust of The Edge Group, Inc..